网站首页

导航
  • 网站首页
  • 自考动态
  • 专业计划
  • 考试安排
  • 常见问题
  • 历年真题
  • 试听课程
  • 专本套读

全国2010年4月高等教育自学考试结构力学(一)试

贵州自考网2018-05-24
联系老师

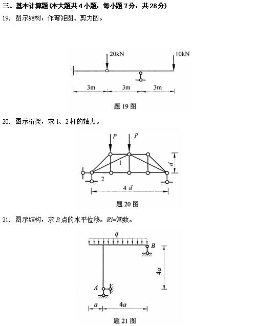
全国2010年4月高等教育自学考试结构力学(一)试题
课程代码:02393

全国2010年4月高等教育自学考试结构力学(一)试题

全国2010年4月高等教育自学考试结构力学(一)试题

全国2010年4月高等教育自学考试结构力学(一)试题

全国2010年4月高等教育自学考试结构力学(一)试题

全国2010年4月高等教育自学考试结构力学(一)试题

全国2010年4月高等教育自学考试结构力学(一)试题

全国2010年4月高等教育自学考试结构力学(一)试题

全国2010年4月高等教育自学考试结构力学(一)试题

全国2010年4月高等教育自学考试结构力学(一)试题

全国2010年4月高等教育自学考试结构力学(一)试题

全国2010年4月高等教育自学考试结构力学(一)试题

全国2010年4月高等教育自学考试结构力学(一)试题
 

  • 上一篇:全国2010年4月高等教育自学考试土木工程制图试题

    下一篇:全国2010年4月高等教育自学考试德育原理试题
您可能感兴趣的:
  • 2024年4月贵州自考心理学部分答案解析
  • 2024年4月贵州自考外国文学史部分答案解析
  • 2024年4月自考美学简答题答案
  • 2024年4月贵州自考《英语二》答案
  • 2024年4月贵州自考03706《思想道德修养与法律基础》真题答案解析